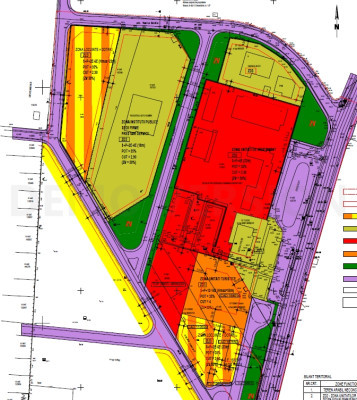
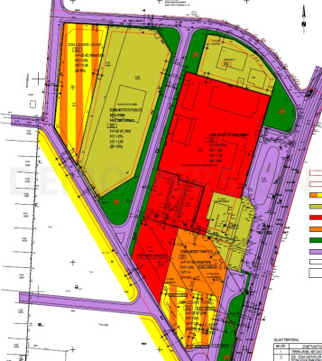
BRASOV: Investitie majora pe 9,1 hectare de teren pentru locuinte si turism

: *****
: nou | : BV43572 | : 10-04-2026
: Imobile Rezidentiale
: Ansamblu rezidential
: *****
: 14,70 mil. euro
: ***** mp
: S+P+12E, S+P+6E, S+P+4E
: Beton Armat
: *****
: *****
: PRE-Executie, Pregatire Investitie
: Brasov
: BRASOV
: *****
: Complex mixt, amplasat pe un teren de peste 9,1 hectare, care va include imobile de locuinte colective (regim maxim admis de inaltime S+P+6E), turistice (regim maxim admis de inaltime S+P+12E), administrative/de prestari servicii si cu functiuni de invatamant (regim maxim admis de inaltime S+P+4E). Potrivit indicatorilor urbanistici propusi, obiectivul va totaliza o suprafata construita de cel mult 18.377 mp. Vor fi amenajate locuri de parcare, alei carosabile/pietonale si zone de agrement.
: *****

Important:

Accesul la informatiile detaliate este permis numai utilizatorilor abonati care au un abonament valid.
Daca sunteti deja abonat este necesar sa va AUTENTIFICATI.
Pentru informatii suplimentare utilizati sectiunea TESTARE & ABONARE, trimiteti mesaj prin email: Această adresă de email este protejată contra spambots. Trebuie să activați JavaScript pentru a o vedea.,
sau apelati la telefon: 0773 943 239, 021-336.04.16, 021-336.04.17. Va multumim!

PROIECTE NATIONALE

Serviciul Proiecte Nationale ofera informatii relevante despre noile proiecte / investitii importante in constructii, anuntate de catre investitori.

Publicam date pentru ofertarea de lucrari si servicii la noile investitii private / publice disponibile, cum sunt: descriere, documentatie, termene, stadiu, date de contact pentru beneficiar, proiectant, dezvoltator, antreprenor / firma de constructii etc.
BRASOV: Investitie majora pe 9,1 hectare de teren pentru locuinte si turism
10.04.2026 | Brasov | Civile, Mixt | S+P+12E, S+P+6E, S+P+4E | Valoare: 15 mil. euro
ARAD: Peste 16.000 mp construiti pentru un nou centru de servicii si comert
10.04.2026 | Arad | Industriale, Mixt | P+2E | Valoare: 13 mil. euro
ALBA: PUZ pentru un nou cartier cu 31 imobile de locuinte individuale, P+1E+M
10.04.2026 | Alba | Civile, Locuinte | P+1E+M | Valoare: 5 mil. euro
BRASOV: Investitie de 89 milioane de lei pentru un cartier nou cu 100 de case
09.04.2026 | Brasov | Civile, Locuinte | P+1E | Valoare: 18 mil. euro
DOLJ: Ansamblu de 5 blocuri cu regim S+P+8E propus pe un teren de 32.000 mp
09.04.2026 | Dolj | Civile, Locuinte | S+P+8E | Valoare: 11 mil. euro
OTOPENI: Complex cu hotel si cladiri mixte, in curs de obtinere a avizelor
09.04.2026 | Ilfov | Civile, Turism | P+3E | Valoare: 6 mil. euro
IALOMITA: Investitie de 110 milioane de lei intr-o unitate de productie moderna
08.04.2026 | Ialomita | Industriale, Hale | | Valoare: 22 mil. euro
ARAD: Centru logistic modern cu hale si birouri pe o suprafata de 6.000 mp
08.04.2026 | Arad | Industriale, Hale | P+2E | Valoare: 7 mil. euro
TIMIS: Complex mixt in avizare cu hala si birouri pe un teren de peste 9.500 mp
08.04.2026 | Timis | Industriale, Mixt | P+2E | Valoare: 4 mil. euro
BALOTESTI: Dezvoltare zona comerciala mixta, pe un teren de peste 19 ha
07.04.2026 | Ilfov | Civile, Comercial | P+14E, P+4E | Valoare: 77 mil. euro
BUZAU: Demersuri pentru un parc industrial de 9,3 hectare cu fonduri europene
07.04.2026 | Buzau | Industriale, Hale | | Valoare: 10 mil. euro
VALCEA: Fonduri de 22 milioane de lei pentru constructia unui bazin de inot
07.04.2026 | Valcea | Civile, Sport | S-partial+P+1E-partial | Valoare: 4 mil. euro
DOLJ: Investitie imobiliara pe 6 hectare cu 8 blocuri si o cladire mixta
06.04.2026 | Dolj | Civile, Locuinte | S+P+10E | Valoare: 29 mil. euro
ARAD: PUZ pentru un complex rezidential mixt cu aproximativ 80 imobile
06.04.2026 | Arad | Civile, Mixt | S/D+P+2E+E3-retras, S/D+P+2E, S/D+P+1E | Valoare: 15 mil. euro
©2026 Agenda Investitiilor
(un produs Agenda Constructiilor)
Str. Ienachita Văcărescu 17, sector 4, Bucuresti.
Fereastra
Agenda Constructiilor

Pentru informații suplimentare echipa noastră vă stă la dispoziție:
Telefon: 021 336 0416 | Mobil: 0773 943 239
Email: office@agendaconstructiilor.ro
Adresă: Str. Ienăchiță Văcărescu nr. 17, Sector 4, București
Rampa Invest SRL - Cod Fiscal: RO 13506167, J40/10200/2000

Don't have an account yet? Register Now!

Sign in to your account