BIHOR: Ansamblu cu 16 loturi pentru imobile de locuinte individuale si mixte

: *****
: nou | : BH43510 | : 25-03-2026
: Imobile Rezidentiale
: Ansamblu rezidential
: *****
: 5,03 mil. euro
: ***** mp
: S/D+P+1E/M
: Beton Armat
: *****
: *****
: PRE-Executie, PUZ
: Bihor
: ORADEA
: *****
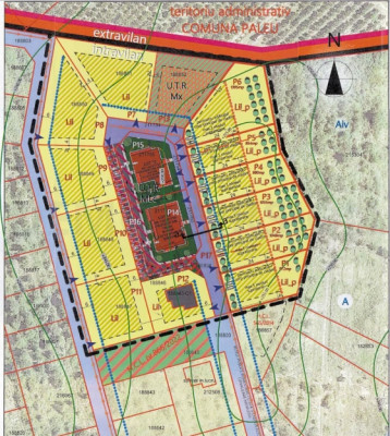
: Ansamblu rezidential, amplasat pe un teren de 19.318 mp, care va include 16 loturi pentru edificarea de imobile de locuinte individuale si mixte (regim maxim admis de inaltime S/D+P+1E/M). Potrivit indicatorilor urbanistici preliminari propusi, suprafata construibila va fi de 6.209 mp. Vor fi amenajate locuri de parcare, alei carosabile/pietonale si zone de agrement.
: *****

Important:

Accesul la informatiile detaliate este permis numai utilizatorilor abonati care au un abonament valid.
Daca sunteti deja abonat este necesar sa va AUTENTIFICATI.
Pentru informatii suplimentare utilizati sectiunea TESTARE & ABONARE, trimiteti mesaj prin email: Această adresă de email este protejată contra spambots. Trebuie să activați JavaScript pentru a o vedea.,
sau apelati la telefon: 0773 943 239, 021-336.04.16, 021-336.04.17. Va multumim!

PROIECTE NATIONALE

Serviciul Proiecte Nationale ofera informatii relevante despre noile proiecte / investitii importante in constructii, anuntate de catre investitori.

Publicam date pentru ofertarea de lucrari si servicii la noile investitii private / publice disponibile, cum sunt: descriere, documentatie, termene, stadiu, date de contact pentru beneficiar, proiectant, dezvoltator, antreprenor / firma de constructii etc.
TIMIS: Investitie de peste 129 milioane de lei pentru un centru comunitar
25.03.2026 | Timis | Civile, Social | | Valoare: 26 mil. euro
DAMBOVITA: Peste 41 milioane de lei pentru executia unui sediu administrativ
25.03.2026 | Dambovita | Civile, Administrativ | P+1E+Terasa circulabila | Valoare: 8 mil. euro
BIHOR: Ansamblu cu 16 loturi pentru imobile de locuinte individuale si mixte
25.03.2026 | Bihor | Civile, Mixt | S/D+P+1E/M | Valoare: 5 mil. euro
GORJ: Ansamblu rezidential cu 29 imobile de locuinte individuale, P+2E
25.03.2026 | Gorj | Civile, Locuinte | P+2E | Valoare: 4 mil. euro
CONSTANTA: Ansamblu rezidential mixt, situat pe un teren de peste 5,3 ha
24.03.2026 | Constanta | Civile, Mixt | P+8E | Valoare: 54 mil. euro
BUCURESTI: Circa 50 milioane de lei pentru reabilitarea unui bloc de locuinte
24.03.2026 | Bucuresti | Civile, Locuinte | S+P+6E | Valoare: 10 mil. euro
VOLUNTARI: Avize pentru ansamblu cu imobile de locuinte coective, Ds+P+5E
24.03.2026 | Ilfov | Civile, Locuinte | Ds+P+5E | Valoare: 6 mil. euro
MARAMURES: Fonduri de 5,45 milioane de euro pentru o unitate moderna de productie
24.03.2026 | Maramures | Industriale, Hale | Parter inalt | Valoare: 5 mil. euro
COVASNA: PUZ pentru un ansamblu rezidential, pe un teren de peste 54.000 mp
23.03.2026 | Covasna | Civile, Locuinte | P+4E, P+2E+E3-retras, P+1E | Valoare: 35 mil. euro
BIHOR: Ansamblu rezidential cu 57 imobile de locuinte individuale, S/D+P+1E/M
23.03.2026 | Bihor | Civile, Locuinte | S/D+P+1E/M | Valoare: 10 mil. euro
GORJ: PUZ pentru construirea unui complex industrial cu 2 cladiri
23.03.2026 | Gorj | Industriale, Hale | Parter | Valoare: 5 mil. euro
IASI: Proiect de construire a unei cladiri mixte, care include si un monument istoric
23.03.2026 | Iasi | Civile, Birouri | 3S+P+6E | Valoare: 4 mil. euro
BRASOV: PUZ pentru edificarea unui ansamblu rezidential cu mai multe imobile
20.03.2026 | Brasov | Civile, Locuinte | 2S+P+6E+E7-retras | Valoare: 26 mil. euro
CORBEANCA: Ansamblu rezidential cu 130 imobile de locuinte individuale si mixte
20.03.2026 | Ilfov | Civile, Locuinte | | Valoare: 10 mil. euro
©2026 Agenda Investitiilor
(un produs Agenda Constructiilor)
Str. Ienachita Văcărescu 17, sector 4, Bucuresti.
Fereastra
Agenda Constructiilor

Pentru informații suplimentare echipa noastră vă stă la dispoziție:
Telefon: 021 336 0416 | Mobil: 0773 943 239
Email: office@agendaconstructiilor.ro
Adresă: Str. Ienăchiță Văcărescu nr. 17, Sector 4, București
Rampa Invest SRL - Cod Fiscal: RO 13506167, J40/10200/2000

Don't have an account yet? Register Now!

Sign in to your account