TIMIS: Proiect de amploare cu regim 2S+P+10E si 90 unitati locative

: *****
: nou | : TM43515 | : 27-03-2026
: Imobile Rezidentiale
: Bloc de locuinte, Cladire supraetajata
: *****
: 4,00 mil. euro
: 2S+P+9E+E10-retras
: Beton Armat
: *****
: *****
: PRE-Executie, Autorizare - Avizare
: Timis
: TIMISOARA
: *****
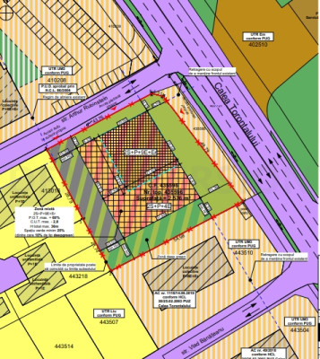
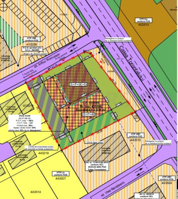
: Pe un teren de 2.576 mp va fi edificat un imobil de locuinte colective cu functiuni complementare si adaposturi de tip SAD (regim maxim admis de inaltime 2S+P+9E+E10-retras), totalizand 90 apartamente. Potrivit indicatorilor urbanistici propusi, obiectivul va avea o amprenta la sol de 1.288 mp si va putea genera o suprafata desfasurata de cel mult 16.744 mp. Vor fi amenajate peste 100 locuri de parcare, alei carosabile/pietonale si zone de agrement.
: *****

Important:

Accesul la informatiile detaliate este permis numai utilizatorilor abonati care au un abonament valid.
Daca sunteti deja abonat este necesar sa va AUTENTIFICATI.
Pentru informatii suplimentare utilizati sectiunea TESTARE & ABONARE, trimiteti mesaj prin email: Această adresă de email este protejată contra spambots. Trebuie să activați JavaScript pentru a o vedea.,
sau apelati la telefon: 0773 943 239, 021-336.04.16, 021-336.04.17. Va multumim!

PROIECTE NATIONALE

Serviciul Proiecte Nationale ofera informatii relevante despre noile proiecte / investitii importante in constructii, anuntate de catre investitori.

Publicam date pentru ofertarea de lucrari si servicii la noile investitii private / publice disponibile, cum sunt: descriere, documentatie, termene, stadiu, date de contact pentru beneficiar, proiectant, dezvoltator, antreprenor / firma de constructii etc.
BUCURESTI: Investitie de 17 milioane de euro pentru 737 unitati locative
22.05.2026 | Bucuresti | Civile, Locuinte | 2S+P+11E-duplex | Valoare: 17 mil. euro
CLUJ: PUZ pentru ansamblu rezidential cu 34 imobile de locuinte individuale
22.05.2026 | Cluj | Civile, Locuinte | (S)+P+2E+M/E3-retras, (S)+P+1E+M/E2-retras | Valoare: 9 mil. euro
DOLJ: Avize pentru construirea unui hypermarket cu zona comerciala, P+1E
22.05.2026 | Dolj | Industriale, Comercial | P+1E-partial | Valoare: 4 mil. euro
MEHEDINTI: PUZ pentru ansamblu cu 40 imobile de locuinte individuale, P+2E
22.05.2026 | Mehedinti | Civile, Locuinte | P+2E, P+1E+M | Valoare: 4 mil. euro
GORJ: Nou parc comercial de proportii cu o suprafata construita de 32.000 mp
21.05.2026 | Gorj | Industriale, Comercial | P+2E | Valoare: 26 mil. euro
OLT: Peste 50 milioane de lei pentru continuarea lucrarilor la un spital
21.05.2026 | Olt | Civile, Medical | | Valoare: 10 mil. euro
TIMIS: Ansamblu cu imobile de locuinte colective si 137 unitati locative
21.05.2026 | Timis | Civile, Locuinte | P+2E+M, P+2E | Valoare: 7 mil. euro
CHITILA: Fonduri de peste 26 milioane de lei pentru executia unei autobaze
21.05.2026 | Ilfov | Infrastructura, Parcari | | Valoare: 5 mil. euro
PRAHOVA: PUZ pentru dezvoltarea unei zone rezidentiale pe un teren de 4,4 ha
20.05.2026 | Prahova | Civile, Locuinte | | Valoare: 17 mil. euro
BUCURESTI: Ansamblu rezidential cu 4 imobile de locuinte si 123 apartamente
20.05.2026 | Bucuresti | Civile, Locuinte | Ds+P+7E | Valoare: 10 mil. euro
ARAD: Ansamblu cu imobile de locuinte individuale, pe un teren de 20.000 mp
20.05.2026 | Arad | Civile, Locuinte | P+1E+M | Valoare: 5 mil. euro
ARAD: S-a semnat contractul de finantarea pentru o sala de sport moderna
20.05.2026 | Arad | Industriale, Sport | P+1E | Valoare: 4 mil. euro
CONSTANTA: Ansamblu cu 49 loturi pentru locuinte colective si individuale
19.05.2026 | Constanta | Civile, Locuinte | P+5E, P+2E | Valoare: 18 mil. euro
GRUIU: Planuri pentru un nou cartier rezidential pe un teren de 2,4 hectare
19.05.2026 | Ilfov | Civile, Locuinte | P+1E | Valoare: 7 mil. euro
©2026 Agenda Investitiilor
(un produs Agenda Constructiilor)
Str. Ienachita Văcărescu 17, sector 4, Bucuresti.
Fereastra
Agenda Constructiilor

Pentru informații suplimentare echipa noastră vă stă la dispoziție:
Telefon: 021 336 0416 | Mobil: 0773 943 239
Email: office@agendaconstructiilor.ro
Adresă: Str. Ienăchiță Văcărescu nr. 17, Sector 4, București
Rampa Invest SRL - Cod Fiscal: RO 13506167, J40/10200/2000

Don't have an account yet? Register Now!

Sign in to your account