SALAJ: Ansamblu rezidential cu 4 imobile de locuinte colective, S+D+P+7E

: *****
: nou | : SJ43437 | : 09-03-2026
: Imobile Rezidentiale
: Ansamblu rezidential
: *****
: 17,58 mil. euro
: ***** mp
: S+D+P+7E, 2D+P+4E+E5-retras, D+P+4E+E5-retras
: Beton Armat
: *****
: *****
: PRE-Executie, PUZ
: Salaj
: ZALAU
: *****
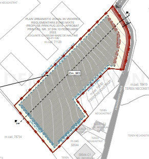
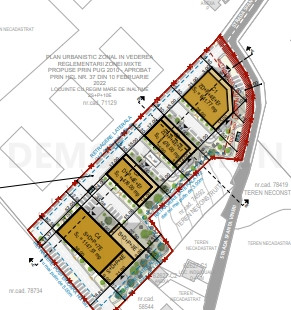
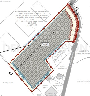
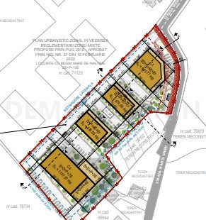
: Ansamblu rezidential, amplasat pe un teren de 8.991 mp, care va include 4 imobile de locuinte colective (regimuri maxime admise de inaltime S+D+P+7E, 2D+P+4E+E5-retras si D+P+4E+E5-retras). Potrivit indicatorilor urbanistici propusi, obiectivul va avea o suprafata construita de 2.741 mp si va putea genera o arie construita desfasurata de cel mult 21.978 mp. Vor fi amenajate locuri de parcare, alei carosabile/pietonale si zone de agrement.
: *****

Important:

Accesul la informatiile detaliate este permis numai utilizatorilor abonati care au un abonament valid.
Daca sunteti deja abonat este necesar sa va AUTENTIFICATI.
Pentru informatii suplimentare utilizati sectiunea TESTARE & ABONARE, trimiteti mesaj prin email: Această adresă de email este protejată contra spambots. Trebuie să activați JavaScript pentru a o vedea.,
sau apelati la telefon: 0773 943 239, 021-336.04.16, 021-336.04.17. Va multumim!

PROIECTE NATIONALE

Serviciul Proiecte Nationale ofera informatii relevante despre noile proiecte / investitii importante in constructii, anuntate de catre investitori.

Publicam date pentru ofertarea de lucrari si servicii la noile investitii private / publice disponibile, cum sunt: descriere, documentatie, termene, stadiu, date de contact pentru beneficiar, proiectant, dezvoltator, antreprenor / firma de constructii etc.
GORJ: Start lucrari pentru o investitie de circa 64 milioane de lei
17.04.2026 | Gorj | Industriale, Hale | Parter | Valoare: 13 mil. euro
MARAMURES: PUZ pentru un nou ansamblu rezidential pe un lot de 9.000 mp
17.04.2026 | Maramures | Civile, Locuinte | D+P+1E+M | Valoare: 7 mil. euro
JILAVA: Avize pentru 2 centre comerciale si un restaurant de tip drive-in
17.04.2026 | Ilfov | Industriale, Comercial | P+1E-tehnic partial | Valoare: 5 mil. euro
POPESTI-LEORDENI: Santier in lucru pentru 3 imobile cu 129 unitati locative
16.04.2026 | Ilfov | Civile, Locuinte | P+3E+E4-E5-retrase | Valoare: 15 mil. euro
BRASOV: Proiect de amploare pe circa 36.000 mp cu functiuni mixte, P+3E
16.04.2026 | Brasov | Industriale, Comercial | P+3E | Valoare: 14 mil. euro
PLOIESTI: Centru de ingrijiri paliative de 20 milioane lei pe un teren de 1,2 ha
16.04.2026 | Prahova | Civile, Medical | P+2E | Valoare: 4 mil. euro
SIBIU: Ansamblu rezidential cu 6 imobile de locuinte si 180 apartamente
15.04.2026 | Sibiu | Civile, Locuinte | D+P+4E, D+P+3E+E4-retras, D+P+2E+E3-retras | Valoare: 16 mil. euro
MARAMURES: PUZ pentru o noua zona industriala pe un teren de 89.000 mp
15.04.2026 | Maramures | Industriale, Hale | P+2E | Valoare: 7 mil. euro
POPESTI-LEORDENI: Peste 25 milioane de lei pentru 3 tronsoane de locuinte colective
15.04.2026 | Ilfov | Civile, Locuinte | Ds+P+5E | Valoare: 5 mil. euro
BRASOV: Investitie de 98 milioane de lei in 7 imobile de locuinte de tip vila
14.04.2026 | Brasov | Civile, Locuinte | D+P+3E+E4-retras | Valoare: 20 mil. euro
BIHOR: Extindere si modernizare de 40 milioane lei pentru unitati de invatamant
14.04.2026 | Bihor | Civile, Invatamant | D+P+2E+M, S+Parter-inalt+1E+M | Valoare: 8 mil. euro
CLUJ: PUZ pentru un nou cartier cu 15 loturi de imobile de locuinte mici
14.04.2026 | Cluj | Civile, Locuinte | S+P+1E+M | Valoare: 4 mil. euro
©2026 Agenda Investitiilor
(un produs Agenda Constructiilor)
Str. Ienachita Văcărescu 17, sector 4, Bucuresti.
Fereastra
Agenda Constructiilor

Pentru informații suplimentare echipa noastră vă stă la dispoziție:
Telefon: 021 336 0416 | Mobil: 0773 943 239
Email: office@agendaconstructiilor.ro
Adresă: Str. Ienăchiță Văcărescu nr. 17, Sector 4, București
Rampa Invest SRL - Cod Fiscal: RO 13506167, J40/10200/2000

Don't have an account yet? Register Now!

Sign in to your account