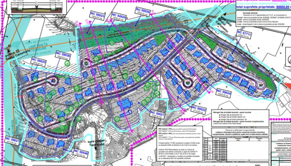
NEAMT: Ansamblu rezidential cu 64 imobile de locuinte individuale si insiruite

: *****
: nou | : NT42763 | : 12-08-2025
: Imobile Rezidentiale
: Ansamblu rezidential
: *****
: 17,90 mil. euro
: ***** mp
: S/D+P+2E
: Mixta
: *****
: *****
: PRE-Executie, PUZ
: Neamt
: PIATRA NEAMT
: *****
: Ansamblu rezidential, amplasat pe un teren de 80.000 mp, care va include 64 imobile de locuinte individuale si insiruite (regim maxim admis de inaltime S/D+P+2E). Potrivit indicatorilor urbansitici propusi, obiectivul va avea o suprafata construita de 22.372 mp si va putea genera o arie desfasurata de cel mult 67.115 mp. Vor fi amenajate locuri de parcare, alei carosabile/pietonale si zone de agrement.
: *****

Important:

Accesul la informatiile detaliate este permis numai utilizatorilor abonati care au un abonament valid.
Daca sunteti deja abonat este necesar sa va AUTENTIFICATI.
Pentru informatii suplimentare utilizati sectiunea TESTARE & ABONARE, trimiteti mesaj prin email: Această adresă de email este protejată contra spambots. Trebuie să activați JavaScript pentru a o vedea.,
sau apelati la telefon: 0773 943 239, 021-336.04.16, 021-336.04.17. Va multumim!

PROIECTE NATIONALE

Serviciul Proiecte Nationale ofera informatii relevante despre noile proiecte / investitii importante in constructii, anuntate de catre investitori.

Publicam date pentru ofertarea de lucrari si servicii la noile investitii private / publice disponibile, cum sunt: descriere, documentatie, termene, stadiu, date de contact pentru beneficiar, proiectant, dezvoltator, antreprenor / firma de constructii etc.
DOLJ: Ansamblu cu 5 imobile de locuinte colective si o cladire mixta, S+P+10E
13.03.2026 | Dolj | Civile, Locuinte | S+P+10E, P+2E | Valoare: 20 mil. euro
HUNEDOARA: Complex cu hale pentru depozitare, in curs de obtinere a avizelor
13.03.2026 | Hunedoara | Industriale, Hale | P+2E | Valoare: 8 mil. euro
VALCEA: Investitie de circa 39 milioane de lei pentru un adapost de animale
13.03.2026 | Valcea | Industriale, Diverse | | Valoare: 8 mil. euro
BRASOV: PUZ pentru un ansamblu cu imobile de locuinte individuale, S+P+1E
13.03.2026 | Brasov | Civile, Locuinte | S+P+1E | Valoare: 4 mil. euro
BALOTESTI: Ansamblu rezidential mixt, edificat pe un teren de peste 67 hectare
12.03.2026 | Ilfov | Civile, Mixt | P+12E, P+5E, P+4E, P+2E | Valoare: 240 mil. euro
SIBIU: Complex industrial, cu hale de productie/depozitare si spatii de birouri
12.03.2026 | Sibiu | Industriale, Mixt | P+2E | Valoare: 13 mil. euro
BRASOV: Ansamblu cu 14 loturi pentru imobile de locuinte individuale, P+1E+M
12.03.2026 | Brasov | Civile, Locuinte | P+1E+M | Valoare: 4 mil. euro
ALBA: PUZ pentru edificarea unui ansamblu cu imobile de locuinte semicolective
12.03.2026 | Alba | Civile, Locuinte | S/D+P+1E+M/E2-retras | Valoare: 4 mil. euro
BISTRITA-NASAUD: Un aeroport va fi edificat pe un teren de 200 hectare
11.03.2026 | Bistrita-Nasaud | Industriale, Diverse | | Valoare: 100 mil. euro
CLUJ: Ansamblu rezidential cu 15 imobile de locuinte individuale si mixte
11.03.2026 | Cluj | Civile, Locuinte | (3S)+P+4E+E5-retras, (S)+P+1E | Valoare: 10 mil. euro
BUCURESTI: Circa 22 milioane de lei pentru un centru de ingrijiri paliative
11.03.2026 | Bucuresti | Civile, Medical | | Valoare: 4 mil. euro
MURES: PUZ pentru construirea unei sali de eveniment si a unui restaurant
11.03.2026 | Mures | Civile, Mixt | P+1E+M, P+1E, Parter | Valoare: 4 mil. euro
BIHOR: Lucrari in grafic pentru 6 blocuri de locuinte cu 879 apartamente
10.03.2026 | Bihor | Civile, Locuinte | D+P+10E | Valoare: 59 mil. euro
TIMIS: Ansamblu rezidential cu 6 imobile de locuinte colective si mixte, S/D+P+4E
10.03.2026 | Timis | Civile, Mixt | S/D+P+4E, S/D+P+2E+M/E3-retras | Valoare: 13 mil. euro
©2026 Agenda Investitiilor
(un produs Agenda Constructiilor)
Str. Ienachita Văcărescu 17, sector 4, Bucuresti.
Fereastra
Agenda Constructiilor

Pentru informații suplimentare echipa noastră vă stă la dispoziție:
Telefon: 021 336 0416 | Mobil: 0773 943 239
Email: office@agendaconstructiilor.ro
Adresă: Str. Ienăchiță Văcărescu nr. 17, Sector 4, București
Rampa Invest SRL - Cod Fiscal: RO 13506167, J40/10200/2000

Don't have an account yet? Register Now!

Sign in to your account