TIMIS: Autorizatie de construire pentru un complex cu 3 hale pentru depozitare

: *****
: nou | : TM41890 | : 01-11-2024
: Obiective Industriale & Logistica
: Hala industriala, Parc Industrial, Parc Tehnologic, Incubator de Afaceri etc.
: *****
: 8,00 mil. euro
: ***** mp
: Parter inalt
: Mixta
: *****
: *****
: PRE-Executie, Autorizatia de construire obtinuta
: Timis
: Timisoara
: *****
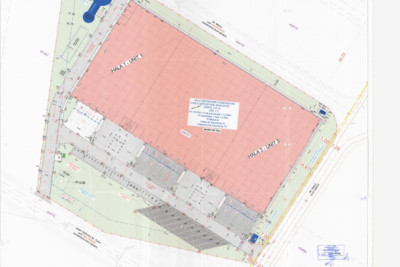
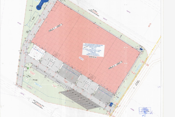
: Pe un teren de 32.459 mp este propusa constructia a 3 hale pentru depozitare, cu spatii administrative si tehnice (Parter inalt). Potrivit indicatorilor urbanistici propusi, obiectivul va totaliza o suprafata construita de 14.708 mp si va putea genera o arie desfasurata de 15.520 mp. Vor fi amenajate 59 locuri de parcare (pentru autoturisme si vehicule de tip TIR), platforme betonate, alei carosabile/ pietonale si spatii verzi.
: *****

Important:

Accesul la informatiile detaliate este permis numai utilizatorilor abonati care au un abonament valid.
Daca sunteti deja abonat este necesar sa va AUTENTIFICATI.
Pentru informatii suplimentare utilizati sectiunea TESTARE & ABONARE, trimiteti mesaj prin email: Această adresă de email este protejată contra spambots. Trebuie să activați JavaScript pentru a o vedea.,
sau apelati la telefon: 0773 943 239, 021-336.04.16, 021-336.04.17. Va multumim!

PROIECTE NATIONALE

Serviciul Proiecte Nationale ofera informatii relevante despre noile proiecte / investitii importante in constructii, anuntate de catre investitori.

Publicam date pentru ofertarea de lucrari si servicii la noile investitii private / publice disponibile, cum sunt: descriere, documentatie, termene, stadiu, date de contact pentru beneficiar, proiectant, dezvoltator, antreprenor / firma de constructii etc.
TIMIS: Au inceput lucrarile de construire a unui hotel cu peste 200 camere
27.04.2026 | Timis | Civile, Turism | 2S+D+P+8E+E9-tehnic | Valoare: 15 mil. euro
CORBEANCA: Ansamblu cu 52 imobile de locuinte individuale si colective mici
27.04.2026 | Ilfov | Civile, Locuinte | P+1E+E2-retras | Valoare: 9 mil. euro
SALAJ: Complex rezidential nou cu 28 de imobile pe o suprafata de 2,7 hectare
27.04.2026 | Salaj | Civile, Locuinte | S+D+P+1E, S+P+1E+M | Valoare: 4 mil. euro
CONSTANTA: Mega-proiect turistic pe 110 hectare cu sute de vile si hoteluri noi
24.04.2026 | Constanta | Civile, Turism | P+4E, P+2E | Valoare: 65 mil. euro
BRASOV: Bloc de 9 etaje cu 88 apartamente, spatii comerciale si birouri
24.04.2026 | Brasov | Civile, Locuinte | D+P+8E+E9-retras | Valoare: 11 mil. euro
DOLJ: Ansamblu rezidential pe 20.000 mp cu locuinte individuale P+2E
24.04.2026 | Dolj | Civile, Locuinte | P+2E | Valoare: 5 mil. euro
ALBA: Patru blocuri cu 106 apartamente vor fi ridicate pe un teren de 10.000 mp
23.04.2026 | Alba | Civile, Locuinte | D+P+3E+E4-retras, D+P+2E+E3-retras | Valoare: 11 mil. euro
CALARASI: Zona rezidentiala de 6.400 mp desfasurati, in stadiu de PUZ
23.04.2026 | Calarasi | Civile, Locuinte | P+2E | Valoare: 5 mil. euro
BUFTEA: Complex industrial cu 10 hale, in curs de obtinere a avizelor de construire
23.04.2026 | Ilfov | Industriale, Hale | Parter inalt | Valoare: 4 mil. euro
VASLUI: Investitie de 13 milioane de euro intr-o noua unitate de productie
22.04.2026 | Vaslui | Industriale, Hale | | Valoare: 13 mil. euro
TIMIS: Fonduri de 24 milioane de lei pentru un complex de 3 hale industriale
22.04.2026 | Timis | Industriale, Hale | Parter inalt | Valoare: 5 mil. euro
MARAMURES: Noul ansamblu cu 25 de case va ocupa un teren de peste 1,4 hectare
22.04.2026 | Maramures | Civile, Locuinte | S/D+P+1E+M/E2-retras | Valoare: 4 mil. euro
©2026 Agenda Investitiilor
(un produs Agenda Constructiilor)
Str. Ienachita Văcărescu 17, sector 4, Bucuresti.
Fereastra
Agenda Constructiilor

Pentru informații suplimentare echipa noastră vă stă la dispoziție:
Telefon: 021 336 0416 | Mobil: 0773 943 239
Email: office@agendaconstructiilor.ro
Adresă: Str. Ienăchiță Văcărescu nr. 17, Sector 4, București
Rampa Invest SRL - Cod Fiscal: RO 13506167, J40/10200/2000

Don't have an account yet? Register Now!

Sign in to your account